關于世紀森朗UC2500吸收解吸裝置,低共熔溶劑具有極低的揮發性、功能可設計等特點,目前我們已通過穩態吸收實驗證明了其對VOCs具有較高吸收容量。...
銷售電話:13269851939
咨詢電話:400-058-2728
關于世紀森朗UC2500吸收解吸裝置,低共熔溶劑具有極低的揮發性、功能可設計等特點,目前我們已通過穩態吸收實驗證明了其對VOCs具有較高吸收容量。鑒于動態吸收性能和循環性能是衡量吸收劑傳質性能和經濟性的關鍵指標,因此有必要進一步開展動態吸收-解吸實驗。通過在吸收-解吸裝置上考察氣液比、吸收理論級數對氣體吸收率的影響規律,以及解吸溫度和壓力等參數對吸收劑再生性能的影響規律,優化動態吸收過程中的吸收和解吸參數,進而可指導試驗規模放大。裝置主要由吸收塔、解吸塔、泵等組成,可以吸收-解吸連續運行,也可單塔獨立運行。吸收-解吸裝置應兼具安全性、實用性、可靠性和先進性。由于解吸是在負壓條件下進行,因此解吸塔須滿足氣密性要求;吸收塔與解吸塔之間具有一定的壓差,因此泵的選型應滿足壓差要求。此外,裝置還應滿足走線清晰、布局合理美觀的外觀要求。

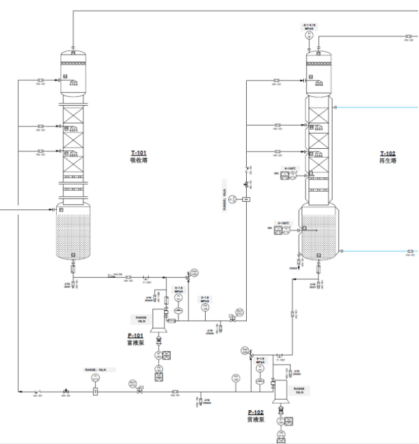
UC2500吸收解吸裝置工藝原理和系統功能要求
吸收-解吸裝置包含吸收系統和解吸系統,其工作原理是基于氣體在不同壓力下溶解度的變化來實現VOCs氣體與吸收劑之間的傳質過程。吸收系統是氣體和吸收劑接觸完成氣體中目標產物回收的場所,由配氣系統、吸收塔、貧液泵、富液泵和閥門組成,其中配氣系統是通過氣體質量流量計控制來實現混合氣體的濃度和流量控制;混合氣體從吸收塔下部進入塔內,與從上部噴淋而下的吸收劑逆流接觸完成目標氣體的吸收;吸收后的凈化氣從塔頂排出,富吸收液經富液泵從吸收塔底部引入解吸系統。解吸系統是實現吸收劑再生的場所,由解吸塔、真空泵和閥門組成,其中富吸收液從解吸塔上部進入并自上而下流動,在負壓條件下,富吸收液中溶解的VOCs不斷解吸,并從塔頂被真空泵抽出,解吸后得到的貧吸收液經貧液泵從解吸塔底循環回到吸收塔上部重復利用,如此完成一個吸收-解吸周期。
UC2500吸收解吸裝置系統功能要求
吸收-解吸操作在負壓或常壓狀態運行,因此應保證裝置整體氣密性;兩塔間的泵和閥門應滿足壓差工作要求。吸收塔與解吸塔可滿足連續運行、組合使用,以評價吸收劑的實時吸收-解吸性能;同時還可以滿足單塔操作,以單獨評價吸收劑的吸收性能或再生性能。
配氣單元功能要求:設置三路進氣,使用流量分別為70~80NL/h、20~30NL/h和1~3NL/h,每路流量計具備相同的精度,從而保證氣體濃度和流量的準確性和穩定性;配氣單元后設手動取樣口,用于測定進口氣體的組成和特定組分氣的多次混氣平行性效果。吸收塔功能要求:吸收塔采用塔身和塔釜分體連接,便于拆卸和更換填料;吸收塔塔頂設置絲網除沫器;進液口設置噴淋口,增加氣液接觸面積;吸收塔塔頂設壓力傳感器、卸荷閥;吸收塔塔體采用雙層夾套玻璃;吸收塔內填裝散堆填料,理論級數>20;氣體在吸收床層的停留時間>10s;塔釜設置液位計,塔釜最低點設置排凈閥,便于液相排空。解吸塔功能要求:解吸塔采用塔身和塔釜分體連接,便于拆卸和更換填料;解吸塔塔頂設置絲網除沫器;進液口設置噴淋口,增加氣液接觸面積;解吸塔塔頂設置精密壓力表、壓力傳感器、卸荷閥;解吸塔塔體采用雙層夾套玻璃;解吸塔內填裝散堆填料,理論級數>20;塔釜設置液位計,塔釜最低點設置排凈閥,便于液相排空。富液泵的功能要求:富液泵出口設阻尼器,以保證流量平穩;由于吸收塔壓力高于解吸塔,泵入口壓力高于出口壓力,為避免流量計量精度收到影響,因此在泵的出口處增加背壓閥,滿足泵前后的差壓正向。貧液泵的功能要求:貧液泵出口設阻尼器,以保證流量平穩。
UC2500吸收解吸裝置技術要求
吸收-解吸裝置是為了實現吸收劑對VOCs吸收性能的考察,其中氣體最大處理量為100L/h,最大氣液比為10,裝置整體設計應滿足實驗要求,即考察吸收塔理論級數、氣液比對動態吸收效果以及解吸塔理論級數、壓力和溫度對吸收劑再生效果的影響規律。裝置整體采用國產品牌,整體滿足氣密性要求,泵和閥門能滿足裝置運行壓力和流量調節需求,儀表和管線能滿足吸收-解吸裝置壓力和溫度監測、氣相進出口手動取樣檢測需求。
UC2500吸收解吸裝置設置漏電保護,設溫度、壓力和液位實時監測裝置,保證實驗正常安全進行;裝置中氣體采樣和排放處設通風口,保證無氣體外泄;裝置設計及安裝需滿足中石化HSSE要求。
UC2500吸收解吸裝置主要設備單元技術要求:
(1)吸收塔:
吸收溫度:10~40℃
設計溫度:60℃
吸收壓力:0.1~0.5MPa
設計壓力:0.5MPa
氣體最大處理量:100L/h
吸收劑最大流量:10L/h
塔節內徑:≤50mm
塔節高度:≤1500mm
填料高度:≤1200mm
材質:夾套石英玻璃
塔釜容積:5L
(2)解吸塔:
解吸溫度:10~80℃
設計溫度:100℃
解吸壓力:0~0.1MPa
設計壓力:0.5MPa
氣體最大處理量:100L/h
吸收劑最大流量:10L/h
塔節內徑:≤50mm
塔節高度:≤1500mm
填料高度:≤1200mm
材質:夾套石英玻璃
(3)貧液泵
最大量程:10L/h
入口壓力:0~0.1MPa
出口壓力:0.1~0.3MPa
使用溫度:常溫
(4)富液泵
最大量程:10L/h
入口壓力:0~0.3MPa
出口壓力:0.1~0.3MPa
使用溫度:常溫
UC2500吸收解吸裝置,系統設計制造符合ISO標準。
系統所有零部件和各種儀表的計量單位全部采用國際單位標準。