北京世紀森朗公司:茂金屬催化劑制備系統,雙環戊二烯DCPD熱解反應裝置,CPD環戊二烯精制反應裝置,降冰片烯NB制備反應裝置,NB降冰片烯精制工藝裝置,環烯烴共聚物COC制備裝置,COP聚合物生產工藝反應裝置。

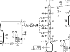
NB降冰片烯精制工藝裝置,降冰片烯是一種重要的共聚單體,可與乙烯、丙烯、苯乙烯等α-烯烴在Ziegler-Natta或 茂金屬催化劑作用下通過非開環聚合反應制備環烯烴共聚物。環烯烴共聚物兼具低密度、低 吸濕性、高透明性、高耐熱性、高折光指數以及優良的加工性,是近年來在工業界和學術界 引起高度重視的無定形熱塑性高分子材料,在光學、電子、醫藥包裝等領域具有廣泛的應用前景。

NB降冰片烯精制工藝裝置,降冰片烯 (NBE, norbornene)又稱降莰烯 (norcamphene),其分子結構中具有環己烯環與亞甲基橋 (C-1與C-4之間)結構單元 ,同時,由于環中雙鍵的引入,將產生顯著的環張力與高度的反應活性。降冰片烯(norborneneNB),聚合產物具有高透明性、高玻璃化轉變溫度(T)和高耐化學藥品性的特點。隨著對α烯烴/環烯烴共聚物催化體系研究的深入,采用a烯烴與非共軛二烯烴共聚合,也可以得到a烯烴/環烯烴共聚物[14~16]。所用非共軛雙烯單體主要為1,5-己二烯和1,6庚二烯。